ICFs 28 Type L Corner Build Blocks

28 Type Left Coner Blocks:

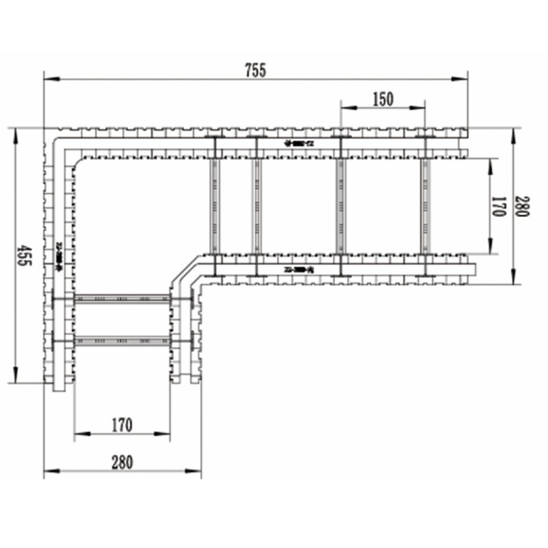
Wall overall thickness is 28 cm, including the thickness of the eps two side panels 11 cm,and the intermediate concrete thickness 17 cm;

Quick Inquiry